Espey WDKS-Eco

Espey WDKS-Eco
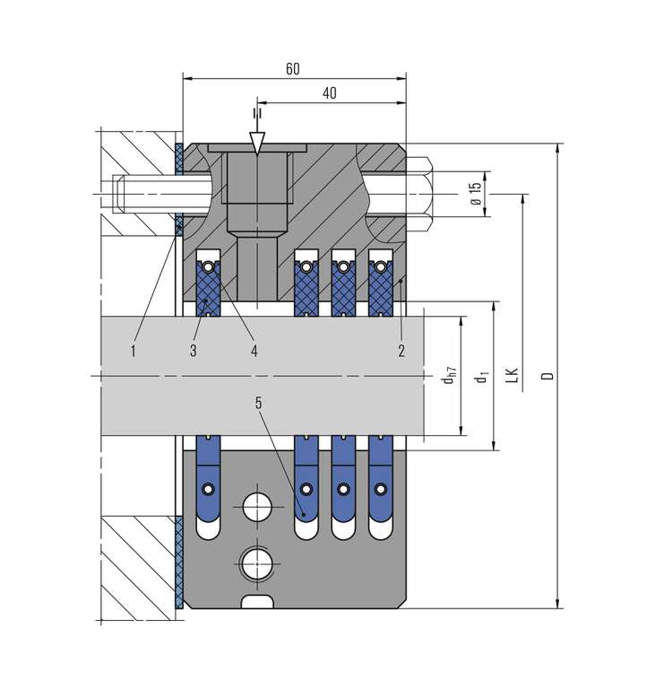
Item Description
1 Flat seal
2 Housing, 2-piece
3 Seal ring
4 Tension spring
5 Detent

Espey WDKS-Eco

Features

  • Multi-part seal rings, radially cut
  • Split housing design
  • Very small operation gap - low leakage
  • Dry running
  • Self-adjusting seal rings
  • Seal rings bear radial shaft movements
  • Compensates axial shaft movements
  • No sealing components mounted on the shaft and hence no additional shaft vibrations
  • Seal rings running contact-free - sliding faces and machine consume no additional power

Advantages

  • Easy installation by split housing design (shaft removal not required)
  • Long-term operation time
  • Maintainability
  • Segmented seal rings for easy replacement

Operating range

Shaft diameter:
d = 45 ... 160 mm (1.77" … 6.3")
Operating pressure:
p = vacuum ... 1.5 bar (22 PSI) abs.
Operating temperature: t = -120 °C ... +500 °C (-184 °F … +932 °F) for carbon,
max. 225 °C (437 °F) for PTFE compound, max. 300 °C (572 °F) with grease
Sliding velocity: vg = max. 150 m/s (492 ft/s) for carbon, max. 40 m/s (131 ft/s) for PTFE compound
Radial play: ±2.5 … 5.0 mm (±0.1" … 0.2")
Axial movement: theoretically unlimited
Recommended wear guard: >300 HB (low pressure)

Materials

Seal ring: Carbon, PTFE compound
Housing: 1.4021, 1.4571
Tension spring / detent: 1.4571

Standards and approvals

  • FDA



Product variants

Espey WDKS-Eco
with 2 seal rings
Espey WDKS-Eco
with 3 seal rings
Espey WDKS-Eco
with 4 seal rings

Similar products

Espey Magna500+ the large seal for diameters from 500 mm

  • Split housing design
  • Segmented and self-adjusting seal rings
  • Virtually maintenance- and wearfree
  • Dry-running
  • Suitable for horizontal and vertical use

Espey WD200

  • Split housing design
  • Multi-part seal rings, radially cut
  • Very small operation gap - low leakage
  • Dry running
  • Self-adjusting seal rings
  • Seal rings bear radial shaft movements
  • Compensates axial shaft movements
  • No sealing components mounted on the shaft and hence no additional shaft vibrations
  • Seal rings running contact-free - sliding faces and machine consume no additional power

Espey WD200/500

  • Multi-part seal rings, radially cut on process side, overlapped mortised with gas tight joints on atmosphere side (adjusting)
  • Split housing design
  • Lowest possible operation gap - lowest leakage
  • Dry running
  • Self-adjusting seal rings
  • Seal rings bear radial shaft movements
  • Compensates axial shaft movements
  • Short axial installation length
  • No sealing components mounted on the shaft and hence no additional shaft vibrations
Contact

Inquire about individual solutions

We develop and produce customer-specific special and individual solutions for every application.

Inquire now Discover reference projects
Back to the overview