With around 250 locations and 90 serve centers, we are represented in the most important economic regions of the world. The advantages are clear: short paths to our customers, fast response times and a shared language.
Suitable for pressure reversal e.g. in case of barrier pressure failure
No contamination of the product by barrier fluid
Friction-locked connection to the shaft
Connections to DIN 28138 standards or as required (SeccoMix 491)
ATEX certification available on request
The seal can be lifted off the glass-lined flange as a complete cartridge. The sensitive glass-lined basic flange remains mounted on the vessel.
Operating range
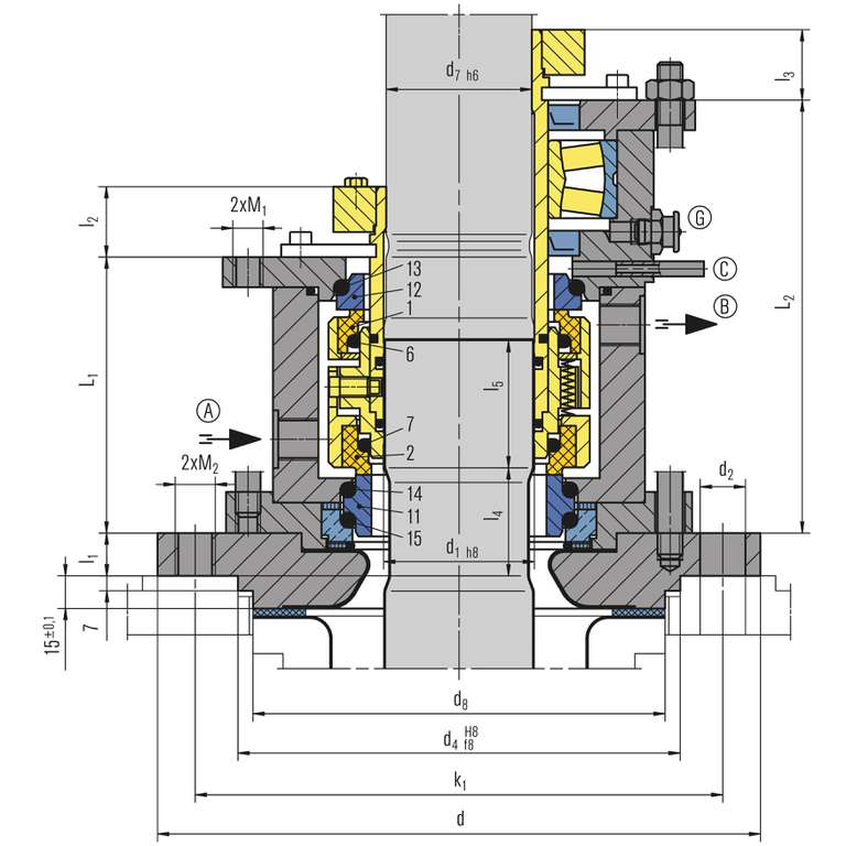
Shaft diameter: d1 = 40 ... 160 mm (1.57" ... 6.3")
Pressure: p1 = vacuum ... 6 bar (87 PSI)
Temperature: t1 = -20 °C ... +200 (250*) °C
(-4 °F ... +392 (482*)) °F
Sliding velocity: vg = 0 ... 2 m/s (0 ... 6 ft/s)
For applications beyond this range, please inquire.
* with cooling flange
! It should be noted that the extremal values of each
operating parameter cannot be applied at the same time
because of their interaction.
Materials
Seal face: Carbon graphite, FDA conform
Seat: Silicon carbide, FDA conform
Secondary seals and metal parts according to application and customer's specifications.
Standards and approvals
FDA
ATEX
DIN 28138 (mechanical seals for agitator shafts)
DIN 28136 T3 (for glass-lined vessels)
DIN 28137 T2 (flange connection for glass-lined vessels)
DIN 28159 (shaft end for glass-lined vessels)
TA-Luft-konform
Recommended applications
Refining technology
Petrochemical industry
Chemical industry
Pharmaceutical industry
Food and beverage industry
Agitators
Mixers
Reactors
Notes
Options:
Cooling or heating flange
Recommended piping plans
Gas supply EagleBurgmann GSS4015/A400-D0
for double seals SeccoMix 461...D..
Product variants
SeccoMix 461-D
Dual seal
SeccoMix 461L-D
Dual seal with integrated floating bearing.
SeccoMix 491
Seal designation for adaptions beyond DIN (e.g. unstepped shaft).